Engineering - Service 
 
 Engineering - Service
 
Als Planungsbüro verfügen wir über langjährige Erfahrungen, wenn es um die Realisierung
von Engineering-Projekten für Kraftwerke, Umwelttechnik, Stahlwerke, Chemie und
Petrochemie geht. Anfragen beantworten wir umgehend mit einem für Sie kostenfreien und unverbindlichen Angebot. Die ganzheitliche Planung, Qualität und kompetente Mitarbeiter bilden das Fundament für die erfolgreiche Abwicklung der Aufträge. Alle im Unternehmen Beschäftigten stehen für diese Punkte ein und sind für die Schaffung und Erhaltung der Kundenzufriedenheit verantwortlich.
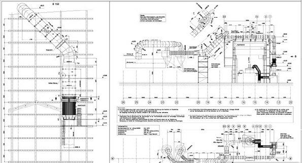
3D Laserscanning
 Wir setzen Maßstäbe bei der As-Built-Dokumentation. Mit unserem 3D-Laserscanner erstellen wir eine Punktwolke einer bestehenden Anlage. Diese  Punktwolke bildet die Basis zur Erstellung von 3D-Modellen und sämtlichen 2D-Zeichenungen und dient somit als
Vorlage für eine geplante Anlagenerweiterung oder einen Umbau.
Ihre Vorteile in Kürze:
- Schnelle Datenerfassung
-     Präzise und berührungslose
 As-Built-Aufnahme
-     Kosten- und Zeitreduktion
 für das Projekt
- Lichtunabhängikeit
-     Datenimplementierung
 in 3D-Systeme
-     Fotorealistische
 3D-Dokumentation
Anlagendokumentation
 Eine aktuelle und vollständige Dokumentation einer Anlage oder Teilanlagen zu besitzen ist essenziell notwendig und vielfach auch durch entsprechende Gesetze und Verordnungen vorgeschrieben.
Die Dokumentation erfolgt nicht nur in Papierform, sondern auch Digital als webunterstützte Darstellung oder virtuell als 3-Dimensionales Abbild der Anlage selbst.
Egal welche Art Sie bevorzugen – wir unterstützen Sie dabei.
Unsere Leistungen sind dabei:
- Definition des Sollzustandes
- Ermittlung der vorhandenen Datenbasis
- Ggf. Ergänzung der vorhandenen Datenbasis durch Anfrage bei Vorlieferanten, durch
- eine IST-Aufnahme per Hand oder per 3D-Laserscanning
- Bearbeiten der aufgenommenen Daten inkl. Intelligente Modellierungen,
- Stücklistenerstellung, Zeichnungserstellung mittels CAD-Programme
- Organisation und Strukturierung der Dokumentation
- Programmierung einer webunterstützten Navigationsoberfläche
- Digitalisierung und/oder Archivierung der Gesamtdokumentation
Unsere CAD / CAE Tools
 Wir bearbeiten die kundenspezifischen Vorgaben mit modernsten Design-Tools. Dabei erfolgt die Umsetzung in der Konstruktion sowohl in 2D als auch in 3D.
In unserem technischen Büro nutzen wir folgende Systeme:
Autodesk
- AutoCAD
- AutoCAD mechanical
- AutoCAD Plant 3D
- Advance Steel
- Inventor
- Navisworks
- Rendering
- Cyclone
- JetStream
- Cloud Worx
- LFM Server
- Creative Cloud
"Unser Bestreben ist es, unsere Kunden in ihren Projekten effizient und professionell zu unterstützen, um eine optimale Realisierung der Projekte zu gewährleisten."
Daniel Heuser - Projektleiter




 
  
  
  
  
  
 




